2-Storey House CAD DWG Drawing File AutoCAD Layout and Design
Description
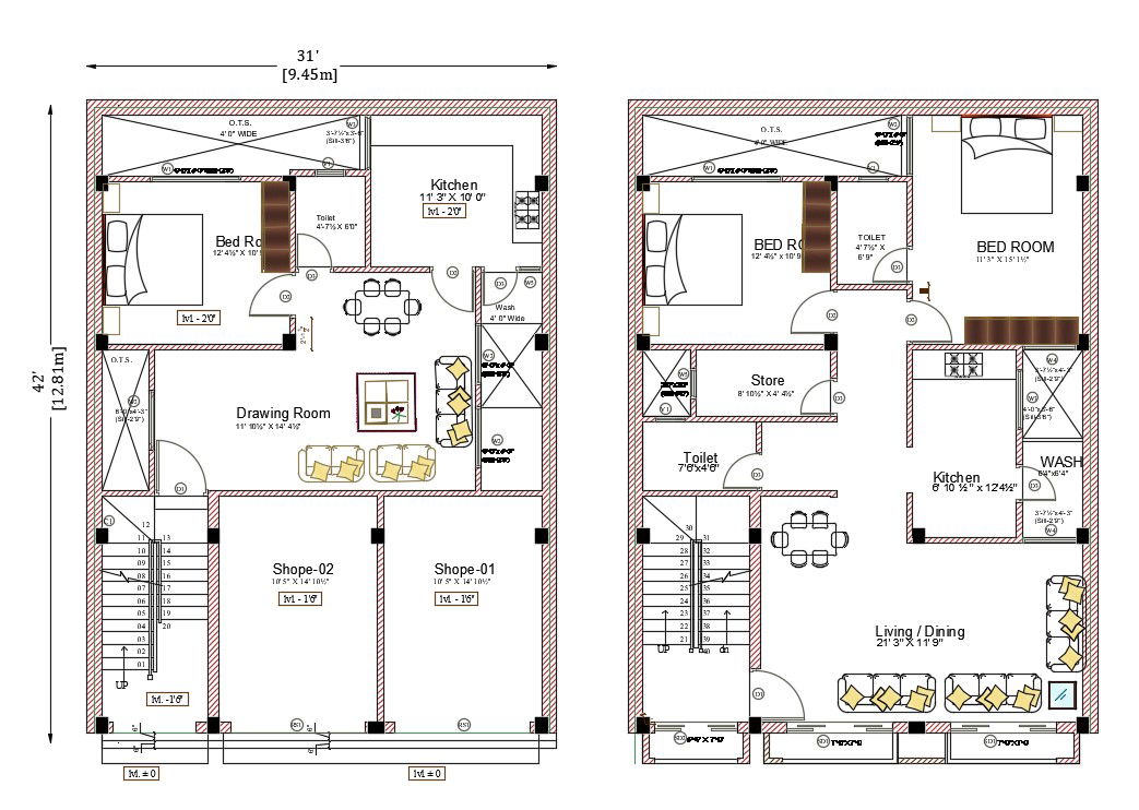
A DWG CAD drawing file showing detailed 2-storey house plan including room layout, staircase, doors, windows, and furniture arrangement. Architects and designers can use this AutoCAD file for planning, visualization, and project documentation. Editable DWG format ensures precise modifications for house design execution.
Uploaded by:

