20x15 Meter terrace floor Apartment Plan DWG File
Description
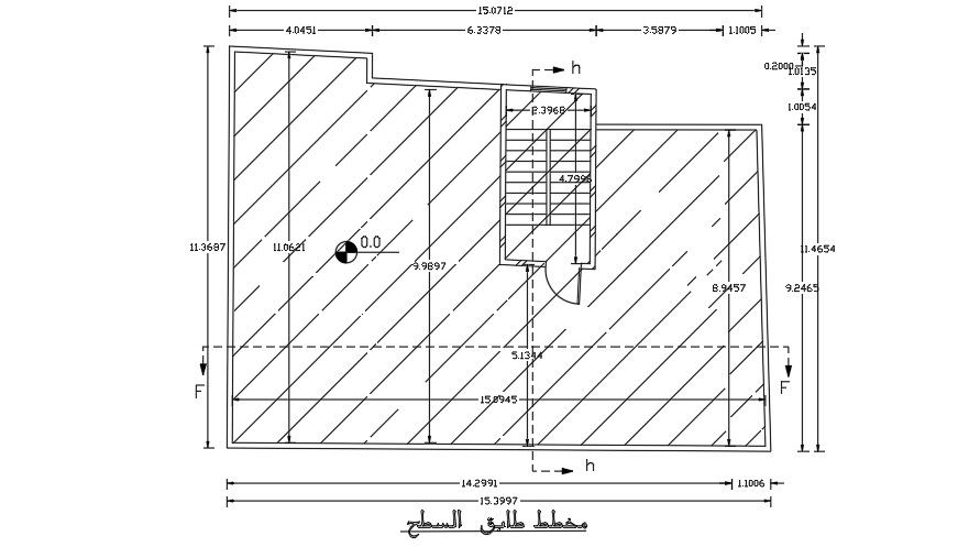
The apartment Terrace Plan layout shows a 20x15 meter size.20x15 Meter Apartment Terrace Plan Layout includes terrace and staircase is available. 20x15 Meter Apartment Terrace Plan dimensions are in a meter. Thank you for downloading the AutoCAD drawing file and other CAD program files from our website. Visit CADBULL.COM Site.
Uploaded by:
K.H.J
Jani

