LOGIN
HOME
CATEGORIES
UPLOAD FILE
PRICING
HOUSE PLAN
ABOUT US
CONTACT US
Congress center office design drawing
Home
Categories
Architecture
Corporate Building
Congress center office design drawing
Uploaded by:
zalak
prajapati
View Profile
View Profile
Description
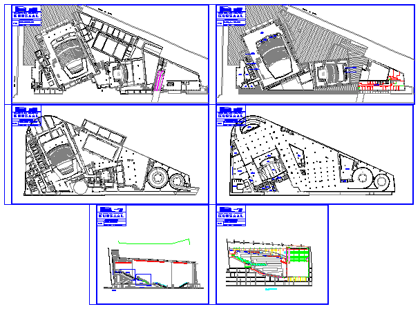
Here the Congress center office design drawing with elevation design and plan design drawing in this auto cad file.
File Type:
DWG
File Size:
1.4 MB
Category::
Architecture
Sub Category::
Corporate Building
type:
Gold
Uploaded by:
zalak
prajapati
View Profile
Download
Add to libary
find Latest
Related
Files