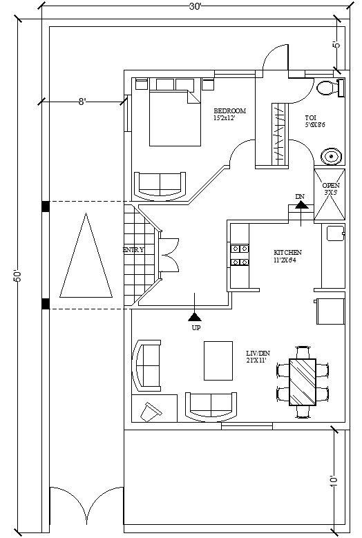
30' x 50' South Facing House Plan With Furniture Dwg File
Description
30' x 50' South Facing House Plan With Furniture Dwg File. This file is a single-story residence with one bedroom. There is a play of levels here. From the entrance lobby we setup up into the drawing and dining room, the kitchen adjoins the dining area. A small window in the kitchen wall connects it to the entrance lobby. The drawing, dining, kitchen are thus from the part of the layout of the higher level while the bedroom has taken on a lower level from the rear part of this layout. The bedroom has a small sitting area and opens out to the backyard behind.
The walls are finished with rough plaster. The overall height is scaled-down by projecting the slab.
Uploaded by:
apurva
munet

