25' x 50' South Facing Ground Floor And First Floor Plan Dwg File.
Description
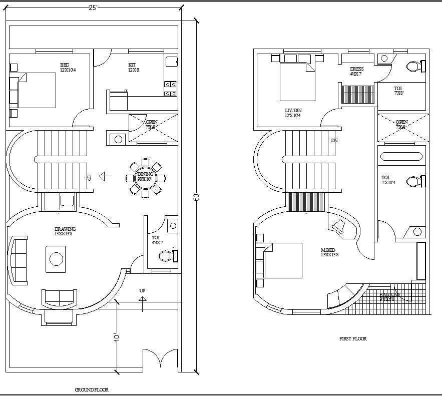
25' x 50' South Facing Ground Floor And First Floor Plan Dwg File. In this file drawing-room, which is the main formal space of this house, is entred off the lobby. We then have the dining area with a semi-private area, followed by the kitchen. Upstairs, the master bedroom gets its own balcony overlooking the main road.
The curved corner gives this house its distinct character. The house of the horizontal rough texture bonds also accentuates the curved form.
Uploaded by:
apurva
munet

