Toilet DWG Design with Detailed Floor Plan Section and Elevation Views
Description
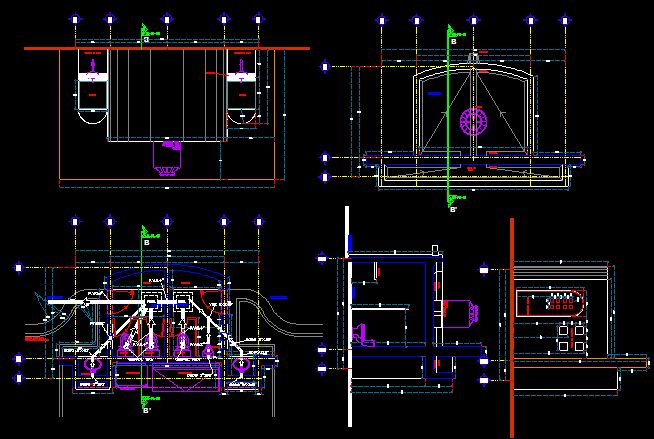
This Toilet DWG Design file provides a comprehensive set of architectural plans, sections, and elevations that illustrate every structural and plumbing element with precision. The drawing includes detailed floor plans showing toilet partitions, sanitary fittings, and plumbing layouts designed for both residential and commercial spaces. Each view showcases wall elevations, fixture positions, and drainage connections, ensuring accuracy and ease of construction.
The AutoCAD DWG file is an excellent reference for architects, civil engineers, and construction professionals involved in restroom planning and design. It demonstrates optimized space utilization, fixture alignment, and service accessibility while maintaining aesthetic and functional balance. With its clean drafting and detailed line work, this DWG file is ideal for technical documentation, educational study, or real-world project execution.

Uploaded by:
Neha
mishra

