LOGIN
HOME
CATEGORIES
UPLOAD FILE
PRICING
HOUSE PLAN
ABOUT US
CONTACT US
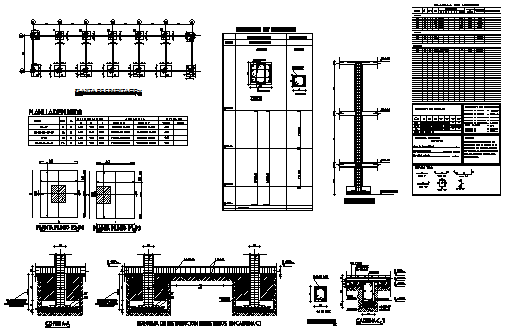
Foundation detail drawing of classroom design
Home
Categories
Structure
Footing Detail
Foundation detail drawing of classroom design
Uploaded by:
zalak
prajapati
View Profile
View Profile
Description
Here the Foundation detail drawing of classroom design with all detailing in this auto cad file.
File Type:
DWG
File Size:
5.2 MB
Category::
Structure
Sub Category::
Footing Detail
type:
Free
Uploaded by:
zalak
prajapati
View Profile
Download
Add to libary
find Latest
Related
Files