LOGIN
HOME
CATEGORIES
UPLOAD FILE
PRICING
HOUSE PLAN
ABOUT US
CONTACT US
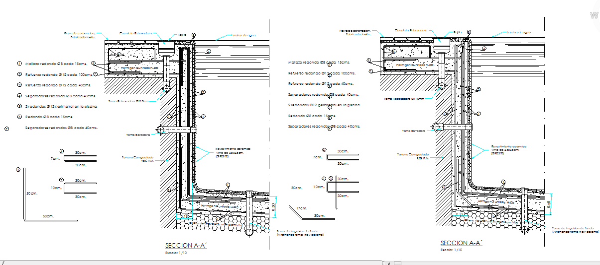
Detail of pools overflow
Home
Categories
Details
Construction Details
Detail of pools overflow
Uploaded by:
apurva
munet
View Profile
View Profile
Description
Here is the detailed autocad dwg of pools overflow with its detail plan and elevations.
File Type:
DWG
File Size:
55 KB
Category::
Details
Sub Category::
Construction Details
type:
Gold
Uploaded by:
apurva
munet
View Profile
Download
Add to libary
find Latest
Related
Files