LOGIN
HOME
CATEGORIES
UPLOAD FILE
PRICING
HOUSE PLAN
ABOUT US
CONTACT US
Club house
Home
Categories
Architecture
Club House Design
Club house
Uploaded by:
apurva
munet
View Profile
View Profile
Description
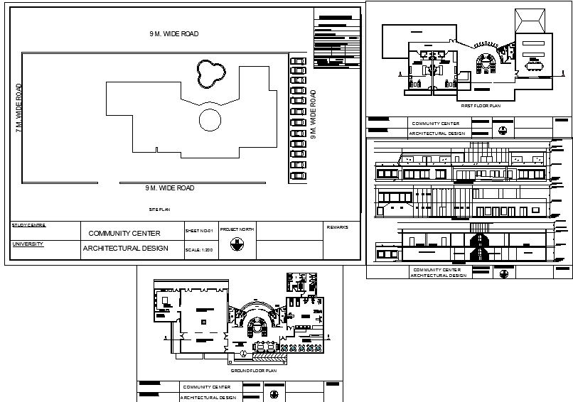
Here is the autocad dwg of club house,drawing consists of civil site plan of club house,ground floor plan of club house,first floor plan of club house.
File Type:
DWG
File Size:
1.1 MB
Category::
Architecture
Sub Category::
Club House Design
type:
Gold
Uploaded by:
apurva
munet
View Profile
Download
Add to libary
find Latest
Related
Files