LOGIN
HOME
CATEGORIES
UPLOAD FILE
PRICING
HOUSE PLAN
ABOUT US
CONTACT US
kitchen project dwg file
Home
Categories
Architecture
Hotels and Restaurants
kitchen project dwg file
Uploaded by:
Priyanka
Patel
View Profile
View Profile
Description
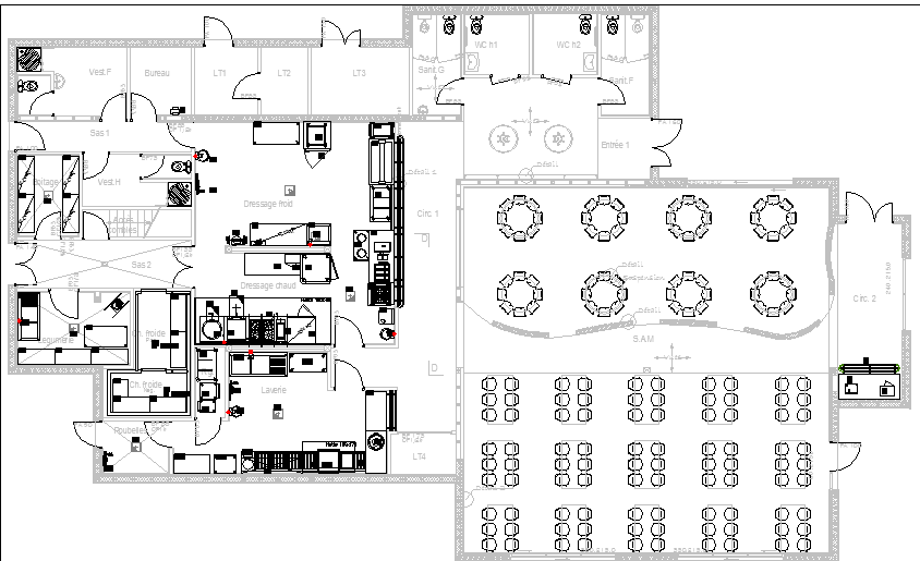
kitchen project dwg file, kitchen detailing, layout plan of kitchen in hotel, seating arrangement in circular direction
File Type:
DWG
File Size:
181 KB
Category::
Architecture
Sub Category::
Hotels and Restaurants
type:
Free
Uploaded by:
Priyanka
Patel
View Profile
Download
Add to libary
find Latest
Related
Files