One family housing 2 storeys with interior green house design drawing
Description
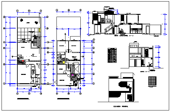
Here the One family housing 2 storeys with interior green house design drawing with center line design drawing, section design drawing and elevation design drawing in this auto cad file.
Uploaded by:
zalak
prajapati

