Professional offices and library 3 floors design drawing
Description
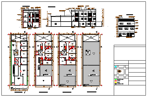
Here the Professional offices and library 3 floors design drawing with floor wise layout plan design, roof plan design, section design drawing and elevation design drawing in this auto cad file.
Uploaded by:
zalak
prajapati

