50x50 Bungalow AutoCAD DWG Layout with Floor Plan and Elevation
Description
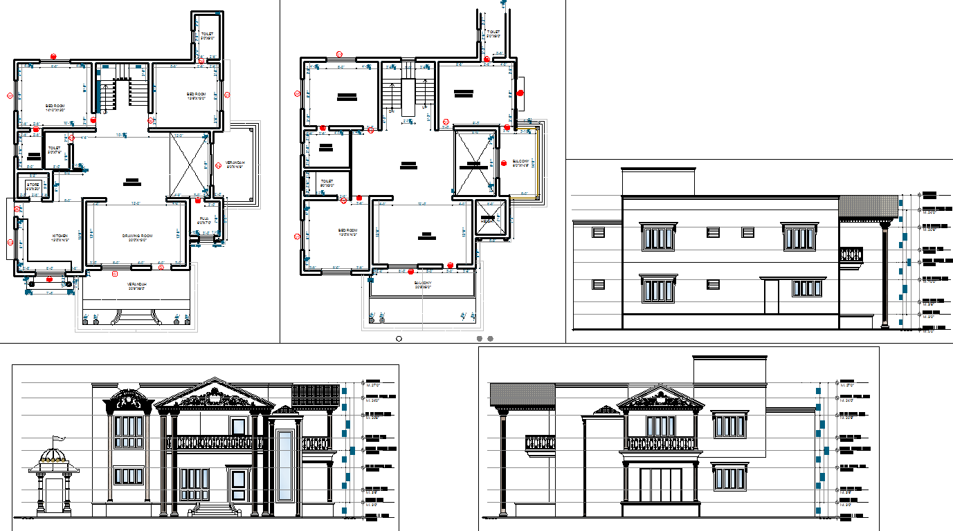
This 50x50 Bungalow AutoCAD DWG file provides a detailed architectural layout including ground floor and first-floor plans, sections, and elevations. The plan displays a spacious living area, dining room, kitchen, multiple bedrooms with attached bathrooms, and balconies. All measurements and structural dimensions are clearly labeled for precision. The front and side elevation drawings highlight ornamental façade detailing with column structures and balcony projections for a modern classical look.
Ideal for architects and civil engineers, this DWG file allows for professional design customization in AutoCAD. It’s particularly useful for 3D modelers and residential planners developing medium-sized homes. The layout also includes balcony placements, an entrance porch, and stair arrangements for optimized functionality and aesthetic appeal. Download this bungalow CAD drawing to use as a reference for architectural design, space planning, or construction documentation.

Uploaded by:
Umar
Mehmood

