LOGIN
HOME
CATEGORIES
UPLOAD FILE
PRICING
HOUSE PLAN
ABOUT US
CONTACT US
Model for Morgue dwg fil
Home
Categories
Architecture
Hospital Projects
Model for Morgue dwg fil
Uploaded by:
K.H.J
Jani
View Profile
View Profile
Description
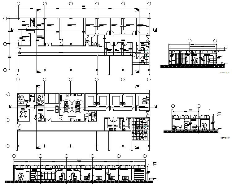
Model for Morgue dwg file. Layout plan, section plan and elevation design of Model for Morgue.
File Type:
DWG
File Size:
2.4 MB
Category::
Architecture
Sub Category::
Hospital Projects
type:
Free
Uploaded by:
K.H.J
Jani
View Profile
Download
Add to libary
find Latest
Related
Files