Apartment AutoCAD DWG with Ground Floor Parking and Elevation Design
Description
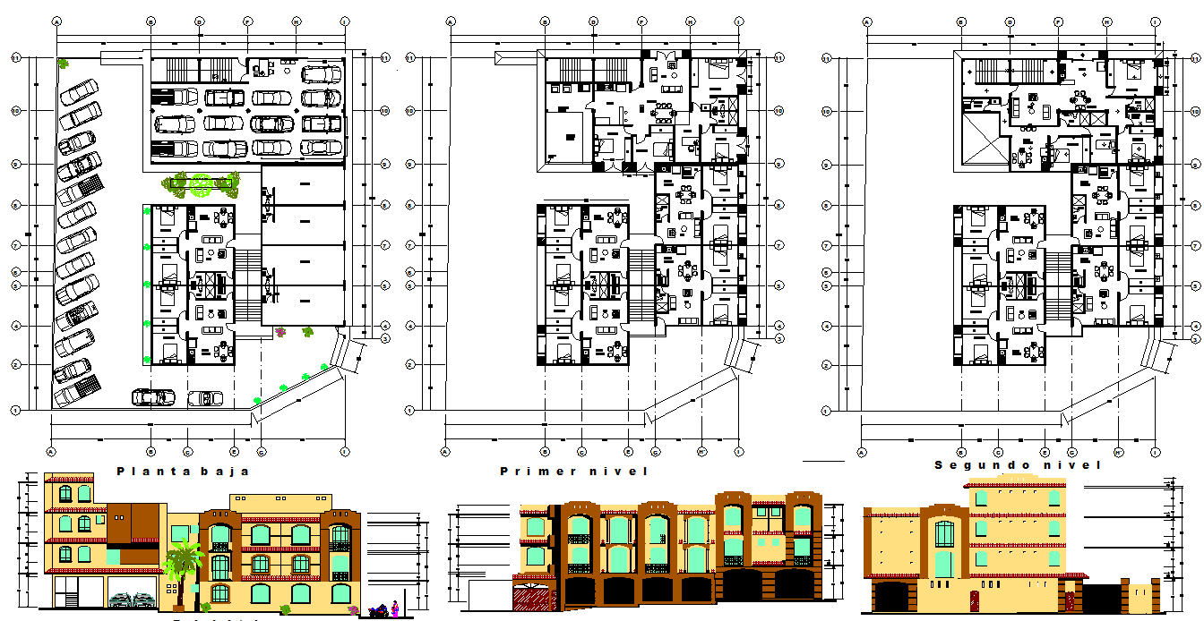
This Apartment AutoCAD DWG file provides a complete architectural layout including ground floor parking, detailed floor plans and elevation drawings. The design includes basement parking, first floor and second floor with accurately dimensioned spaces ideal for residential or mixed use building projects. Each plan shows well arranged living rooms, bedrooms, kitchens, service areas and staircase placements, aligned with proper centerline measurements for construction precision.
Architects, civil engineers and interior designers can use this CAD file to study space management, structural organization and elevation proportions. The drawing also highlights façade elements such as window placements, external finishes and decorative details that enhance the overall look of the building. It is suitable for presentation, visualization and design planning in AutoCAD or similar 3D modeling software. Download this Apartment DWG today to explore complete floor layouts and architectural elevation views for professional residential projects.

Uploaded by:
Fernando
Zapata

