LOGIN
HOME
CATEGORIES
UPLOAD FILE
PRICING
HOUSE PLAN
ABOUT US
CONTACT US
Wooden House Project dwg file
Home
Categories
Architecture
House Plan
Wooden House Project dwg file
Uploaded by:
K.H.J
Jani
View Profile
View Profile
Description
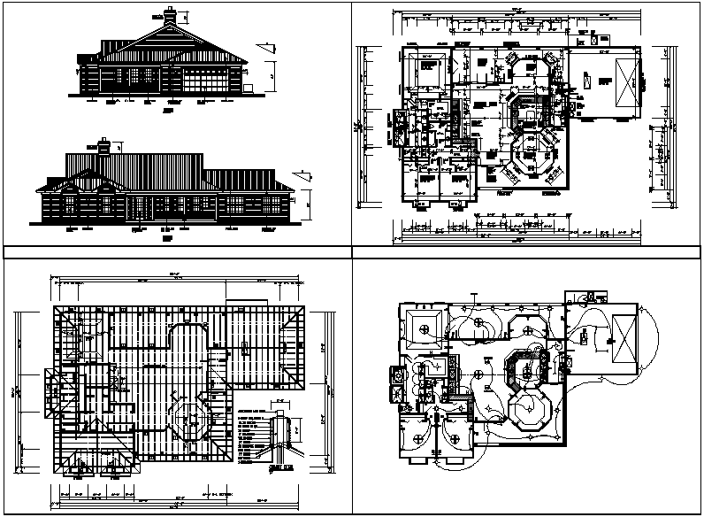
Wooden House Project dwg file. Layout plan, section plan, electrical layout plan, structure plan and elevation design of Wooden House Project.
File Type:
DWG
File Size:
2 MB
Category::
Architecture
Sub Category::
House Plan
type:
Gold
Uploaded by:
K.H.J
Jani
View Profile
Download
Add to libary
find Latest
Related
Files