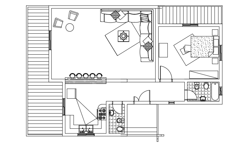
14x10m 1BHK House Plan DWG with Living Room Kitchen and Two Baths
Description
This 14x10m simple house plan DWG provides a clear 2D drawing with a single-story 1BHK layout. The design features a spacious living room, functional kitchen, master bedroom, and two bathrooms. With efficient planning and practical arrangement of spaces, this house plan is ideal for families, architects, and designers looking for compact home solutions. The drawing highlights a well-balanced layout that ensures comfort and utility while maintaining a modern touch in residential design.
Uploaded by:

