Elevation of school building.
Description
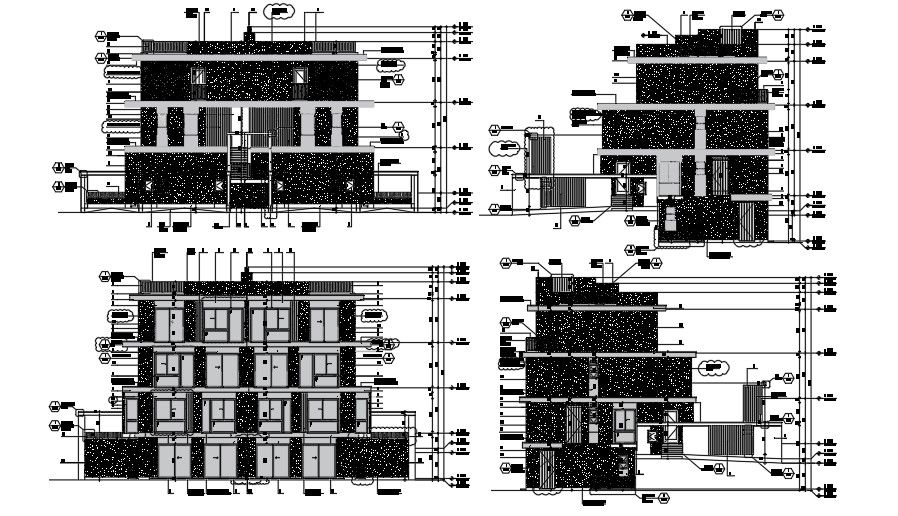
Here elevation of school building including front view , back view , left side view , right view Adequate space must be provided with classrooms, special rooms, school halls, staff room, office room, pupils' common room, library and reading room in every secondary school. Classroom should have 600 Sq. ft. floor area (30? x 20?). The height of each room must be more than 15 feet. Class-rooms: Class-rooms are the major component of the school plant. Subject Rooms: Headmaster's Room The School Office: The Staff-room: School Laboratories: The School Hall library room also provided also including children's play area also shown in elevation for more detail of Elevation of school building download this file
Uploaded by:
zalak
prajapati
