Floor layout of commercial building with interior arrangement.
Description
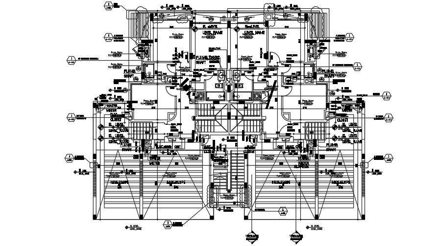
Here floor layout AutoCAD drawing is given in this file. This is residential 3bhk building. On this floor, the bedroom with the attached balcony, kid’s room , kitchen, living room and common bathroom is available. also provide sufficient space of passage also interior arrangement is also shown in this plan including bathroom fittings , bed ,and dinning table. For more details download this AutoCAD file.
Uploaded by:
zalak
prajapati

