Steel structure of residential house doors and detail including section
Description
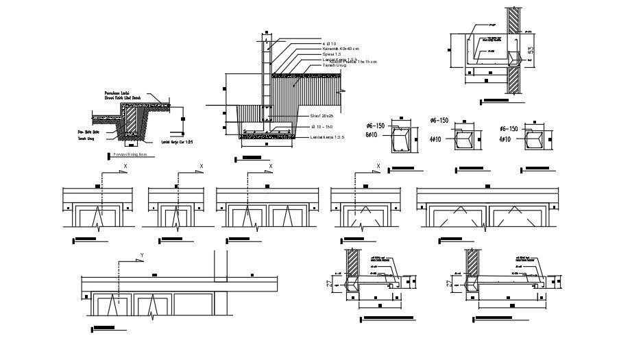
Here Steel structure of residential house doors and window and detail including section Side jambs, head jambs, and mulls are the parts that make up the frame. Residential door frames are most often made of wood but can also be made of aluminum, fiberglass, or a composite material
also shown basic frame and panel item consists of a top rail, a bottom rail, two stiles, and a panel in detail drawing average measurement of 36 by 80 inches refers to the door panel itself, not including the frame. The frame extends beyond the panel, and is installed into the rough opening.
for more details of Steel structure of residential house doors and window and detail including section download this file.
Uploaded by:
zalak
prajapati

