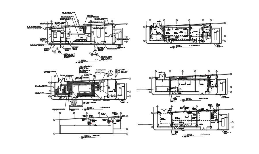
Electric and plumbing layout and sectional plan of site office.
Description
A site plan which shows the location of the building and any external wiring. Floor plans which show the positions of electrical systems on each floor. Wiring diagrams which show the physical connections and layout of electrical circuits. Schedules and other information show in plan also
place plenty of electric outlets in every corner of your sitting room. Place additional outlets in the middle of each wall .all water supply and drain pipes have been run through bored holes in the studs and other framing members that show in drawing , for more details of Electric and plumbing layout and sectional plan of site office download this file.
File Type:
DWG
File Size:
939 KB
Category::
Construction
Sub Category::
Construction Detail Drawings
type:
Gold
Uploaded by:
zalak
prajapati

