Layout and beam detail of residential building
Description
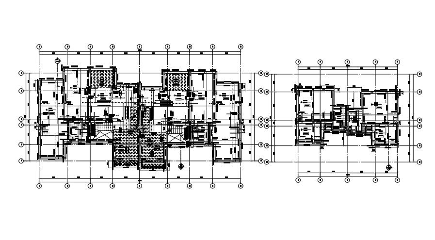
Here layout and beam detail of residential building Steel beam connections are categorized into two groups namely framed and seated connections.in this drawing show beam and column with structure details of plan in this plan show layout of staircase , bedroom ,litchen ,living room ,attached bathroom ,wash area and also balcony provided for more details of this plan download this file
Uploaded by:
zalak
prajapati
