air handling unit connection working

air handling unit connection  working
Profile

Uploaded by:

zalak

prajapati

Description

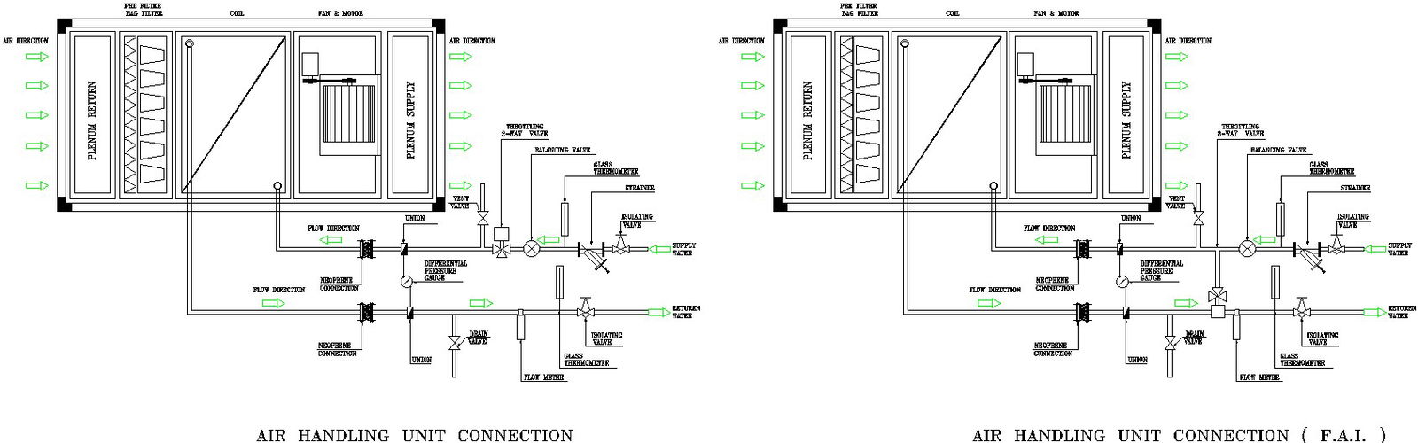
Here Shift the Air Handling Units to the place of installation in safe manner using fork lift/crane as applicable. Ensure that the correct AHU is shifted to the place of installation. Air inlet, outlet, fresh air connection and chilled water connection orientation are as per approved drawings. AHU, completely known as air handling unit is different from FCU or the fan coil unit. AHUs are usually connected to a central HVAC system whereas an FCU can function or be installed itself. AHU, completely known as air handling unit is different from FCU or the fan coil unit. AHUs are usually connected to a central HVAC system whereas an FCU can function or be installed itself. for more details download this file.

Profile

Uploaded by:

zalak

prajapati

find Latest

Related Files

WhatsApp Chat