electric heater
Description
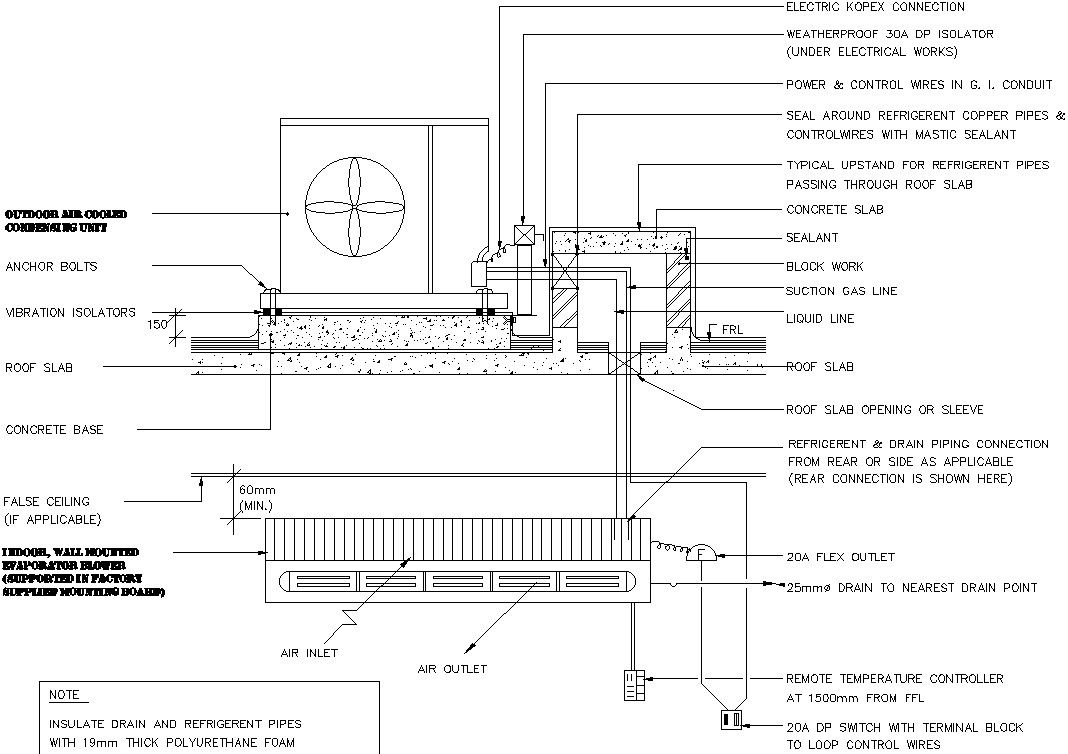
Here Liquid lines generally are insulated. They are warm to hot (110°F (43.3°C) for air-cooled). If liquid lines pass through a space that is warmer than the refrigerant (i.e. the roof of a building at roof level), or if they could be considered hot enough to pose a safety risk, then insulation should be added. Handbook recommends cellular glass, closed-cell elasticated, closed-cell phenol, polystyrene, and polyunsaturate insulation for refrigeration system applications. These insulation types share a few characteristics: closed-cell structure, low water absorption, and low WVT , refrigerant suction lines and chilled water pipes require either 1/2" or 1" insulation depending on the size and temperature of the pipes. 2 Hot pipes require anywhere from 1" to 5" of insulation depending on size and temperature. In addition to the insulation thickness including roof line , liquids gas, suction gas line , power and control wires, for more details of electric heater. concrete slab , 20a flex outlet ,block work , false ceiling concrete base , vibration isolation , 25mm drain to drain nearest point for more details of electric heater download this file
File Type:
DWG
File Size:
5.2 MB
Category::
Mechanical and Machinery
Sub Category::
Other Cad Blocks
type:
Gold
Uploaded by:
zalak
prajapati
