Detailed DWG of Modern TV Unit Design with Dimensions
Description
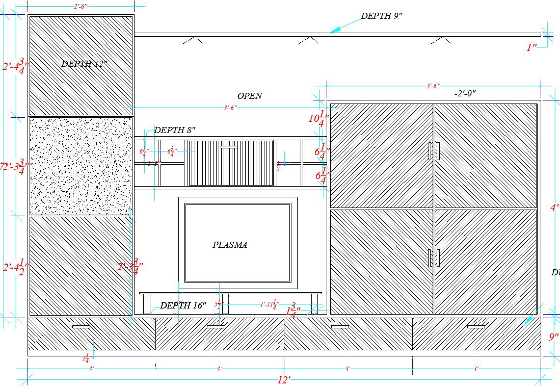
Here Modern plasma tv unit including TV units are made of termite-resistant solid wood, engineered wood, glass, or metal. 36 inches is a good height for a base, while 20 to 24 inches is a good depth for your media cabinet in which you can keep your TV box, play station. also in drawing shown dimension details in elevation for more details download this file .
Uploaded by:
zalak
prajapati

