Air handling unit connection
Description
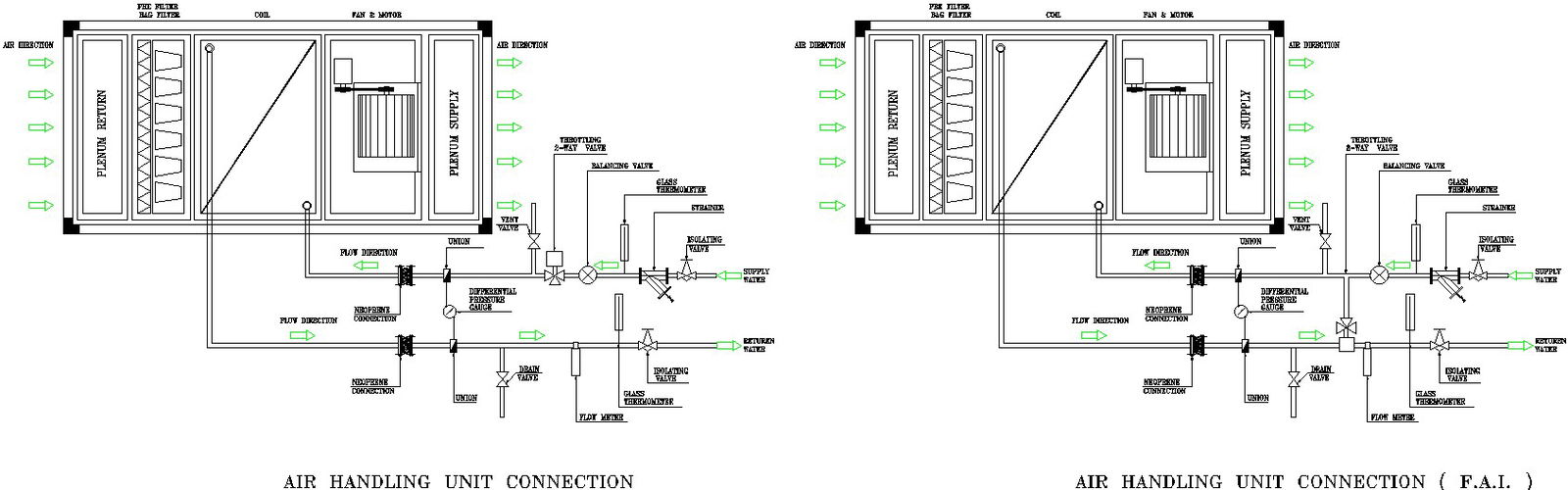
Air handling unit connection including Installation of Air Handling Units AHU & FAHU Shift the AHUs/FAHUs to the place of installation in safe manner using fork lift and crane as applicable. Ensure that the correct AHU is shifted to the place of installation. a single point power connection as main power to the Air Handling Unit. This is the main “high voltage” connection brought to the unit. An electrical panel is provided to accept this connection. having heat recovery units, the AHU reduces the use of energy required in air conditioning, as in the exchanger, the indoor and outdoor air is mixed, so that when the air reaches the coil the temperature contrast is lower, therefore, the climatic contribution is also lower and energy consumption is also reduced. Air handling units’ condition and distribute air within a building. They take fresh ambient air from outside, clean it, heat it or cool it, maybe humidify it and then force it through some duct work around to the designed areas within a building. for more details of air handling unit connection download this file.
File Type:
DWG
File Size:
5.2 MB
Category::
Mechanical and Machinery
Sub Category::
Mechanical Engineering
type:
Gold
Uploaded by:
zalak
prajapati

