Bedroom layout details

Bedroom layout  details
Profile

Uploaded by:

zalak

prajapati

Description

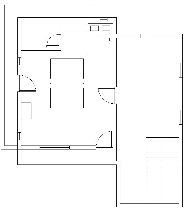
Here Bedroom layout  details Ease of circulation is a factor to consider when planning a bedroom layout. It should be easy to move throughout the room, getting to the door or the closet from the bed for example. Focusing on furniture configuration as well as the scale and function of these pieces is a way to achieve the best flow. Bedrooms are rooms in residential buildings furnished as spaces for people to sleep. Sized proportionally in relation to a variety of standard bed sizes, bedrooms are typically desired to be individual rooms that provide a degree of privacy to their users. Bedrooms are rooms in RESIDENTIAL BUILDING  furnished as spaces for PEOPLE  to SLEEP. Sized proportionally in relation to a variety of standard bed sizes , bedrooms are typically desired to be individual rooms that provide a degree of privacy to their users. Bedrooms are required to have a window for light and ventilation and are typically required to provide a CLOSET and egress to be legally considered a bedroom. Bedrooms are often decorated to reflect the personality of the user or the household. Ranging from small dormitory bedrooms to large bedrooms with attached bathroom  commonly called master bedrooms

Profile

Uploaded by:

zalak

prajapati

find Latest

Related Files