3050x3000mm hospital clean clothes deposit area is given
Description
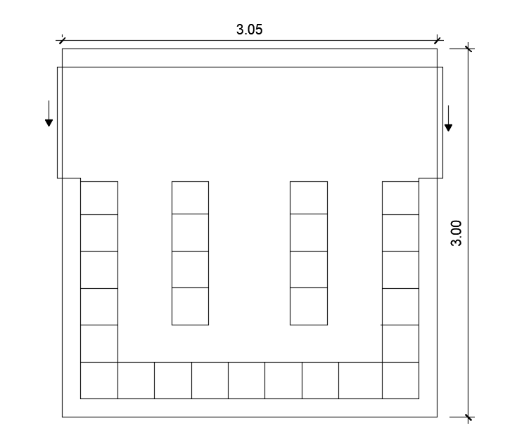
3050x3000mm hospital clean clothes deposit area is given in this file. Here, the racks are provided to keep the cleaned cloths.
Uploaded by:
3050x3000mm hospital clean clothes deposit area is given in this file. Here, the racks are provided to keep the cleaned cloths.
Uploaded by: