Power supply electrical energy public distribution AutoCAD file, cad drawing or dwg format.
Description
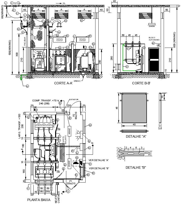
Power supply electrical energy public distribution including an section and front and top view details in this drawing show Distribution networks carry power the last few miles from transmission or sub-transmission to consumers. Power is carried in distribution networks through wires either on poles or, in many urban areas, underground. Distribution networks are distinguished from transmission networks by their voltage level . Lower voltages are used in distribution networks, as lower voltages require less clearance of Power supply electrical energy public distribution system details for more details download AutoCAD file, cad drawing or dwg format.
Uploaded by:
zalak
prajapati
