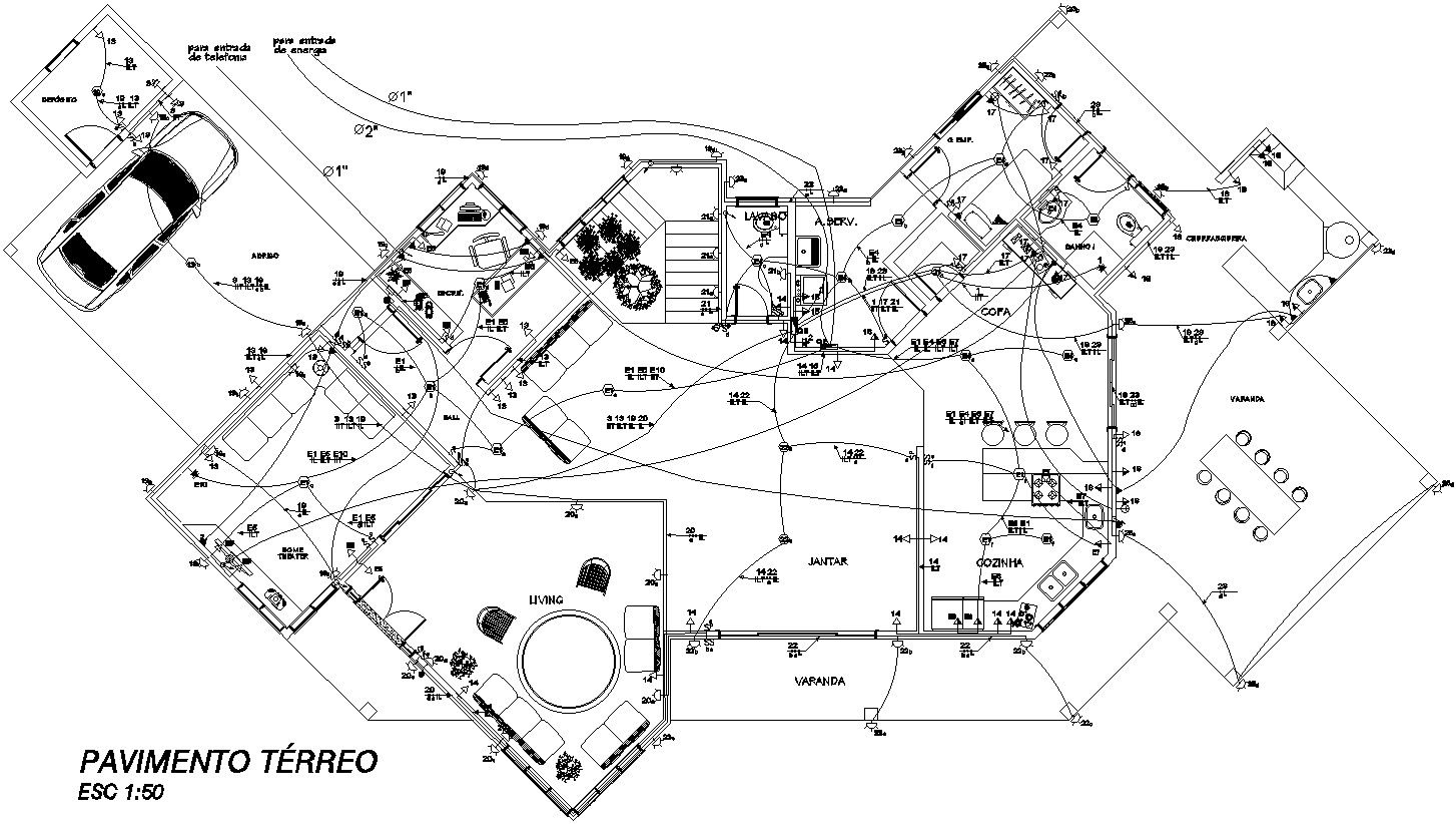
Luxury villa ground floor plan structure details AutoCAD file , cad drawing , dwg format
Description
Luxury house second floor structure details including masterbedroom ,bedroom , open terrace , staircase and white coated alluminium garden for details of Luxury house first floor structure download AutoCAD file , cad drawing , dwg format
Uploaded by:
zalak
prajapati
