LOGIN
HOME
CATEGORIES
UPLOAD FILE
PRICING
HOUSE PLAN
ABOUT US
CONTACT US
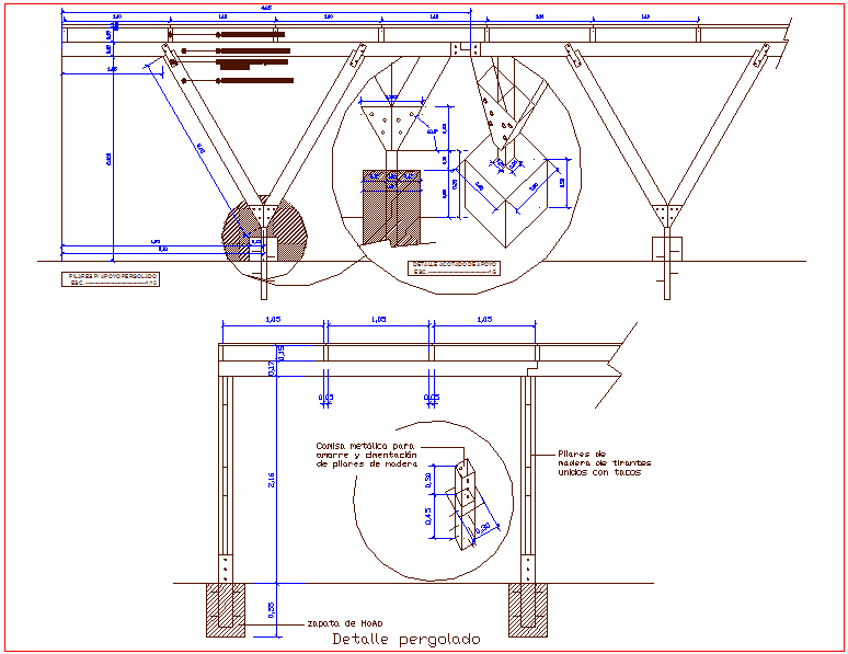
Pergola view with foundation detail
Home
Categories
Details
Construction Details
Pergola view with foundation detail
Uploaded by:
Liam
White
View Profile
View Profile
Description
Pergola view with foundation detail dwg file with view of pillar and dimensional view with foundation detail with sectional view detail.
File Type:
DWG
File Size:
41 KB
Category::
Details
Sub Category::
Construction Details
type:
Gold
Uploaded by:
Liam
White
View Profile
Download
Add to libary
find Latest
Related
Files