Detailed Hotel Project CAD Drawings with Floor Plans and Elevations

Detailed Hotel Project CAD Drawings with Floor Plans and Elevations
Profile

Uploaded by:

Neha

mishra

Description

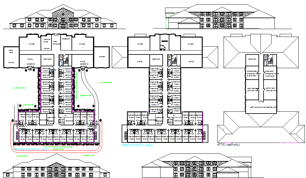
This hotel project cad drawing file provides complete architectural design information useful for planning and development stages. The file includes all floor plans with clear spatial arrangements, circulation paths, and room distribution layouts for guest rooms, common activity spaces, lobby areas, and service sections. Elevations are provided to understand the external building appearance and facade detailing. Each drawing is organized to support accurate drafting and design referencing, making it suitable for architects, interior designers, and civil engineers involved in hospitality projects. The drawing is structured in a format that is easy to edit and adapt in AutoCAD or similar cad software.

Cadbull offers a wide range of architectural cad resources, and this hotel project cad drawing is part of its professional collection. By accessing this file, users can benefit from ready to use design sheets, detailed plan layouts, and elevation references that support conceptual development and execution documentation. The content is useful for building project proposals, renovation planning, design presentations, and structural coordination activities. This cad drawing supports efficient workflow and reduces drafting time by providing precise and clearly defined layouts. Download this cad file to enhance your project resources and design library for hotel and building development work.

Profile

Uploaded by:

Neha

mishra

find Latest

Related Files

WhatsApp Chat