Villa Savoye AutoCAD DWG Drawing with Floor Plan and Elevation
Description
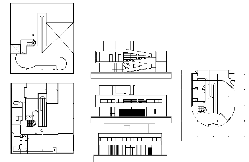
This Villa Savoye AutoCAD DWG drawing showcases detailed architectural plans and elevations of the iconic modernist residence. The layout presents both 2D and 3D views, offering an accurate representation of Le Corbusier’s architectural masterpiece. It includes structural plans, section views, and elevation drawings that highlight the villa’s geometric proportions, open layout, and functional design concept. The file accurately captures the interplay of form, light, and space, making it a valuable resource for architecture students and professionals studying modern architecture.
This AutoCAD DWG drawing follows professional drafting standards and provides complete dimensional data suitable for design analysis and presentation. It is ideal for architects, civil engineers, and interior designers involved in modern residential projects. The drawing can also be used for educational purposes, helping users understand the architectural planning, column grid alignment, and elevation detailing of the Villa Savoye. This CAD file serves as both a study tool and a practical reference for replicating or analyzing modern architectural principles within AutoCAD.
Uploaded by:
coulibaly
seydou

