Design of Arrangement of first chamber in AutoCAD 2D drawing, CAD file, dwg file
Description
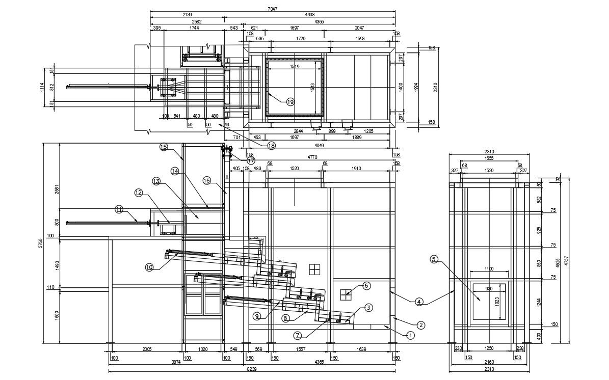
This architectural drawing is the Design of the Arrangement of the first chamber in AutoCAD 2D drawing, CAD file, and dwg file. For more details and information download the drawing file. Thank you for visiting our website cadbull.com.
Uploaded by:
viddhi
chajjed

