AutoCAD 2D drawing of different foundations with details and dimensions, CAD file, dwg file
Description
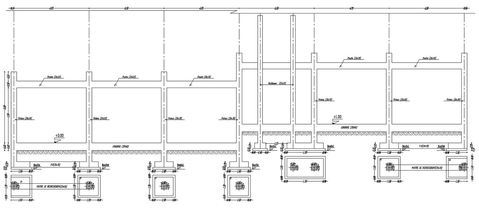
This architectural drawing is AutoCAD 2D drawing of different foundations with details and dimensions, CAD file, dwg file. The foundation, which forms the bottom level of the structure, has two main purposes: it keeps moisture and groundwater out of the building and evenly distributes the weight of the load-bearing walls to the ground below. For more details and information download the drawing file. Thank you for visiting our website cadbull.com.
Uploaded by:
viddhi
chajjed
