The kitchen interior level from the sink area layout
Description
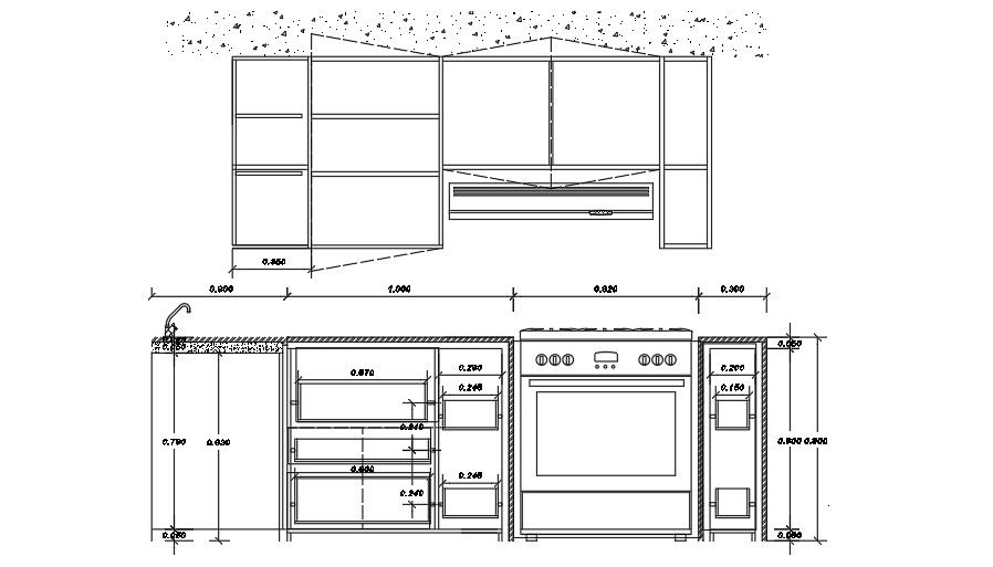
The kitchen interior level from the sink area layout is given in this 2d model. This is a two dimensional drawings which is referred to the cupboard work. The micro oven is fixed in this cupboard. The height of the sink level is 0.8m from the tile surface. Here, the sink direction is mentioned. The total height of the given kitchen size is 0.m.
Uploaded by:

