Detail door window schedule with front and side elevation AutoCAD dwg drawing
Description
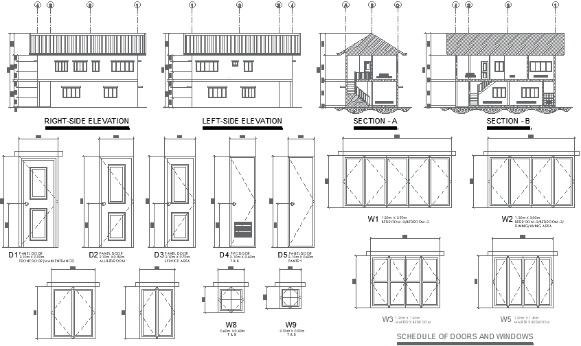
A door and window schedule, along with elevation drawings, provides essential information for understanding the placement, dimensions, and specifications of doors and windows in a building project. Our AutoCAD DWG files offer detailed CAD drawings that include both the schedule and elevation views, ensuring clarity and accuracy in the design process. With this comprehensive information readily available, architects, designers, and builders can effectively plan and execute the installation of doors and windows, enhancing both functionality and aesthetics in the final construction.

Uploaded by:
Liam
White

