Four BHK house plumbing plan with all details AutoCAD DWG drawing.
Description
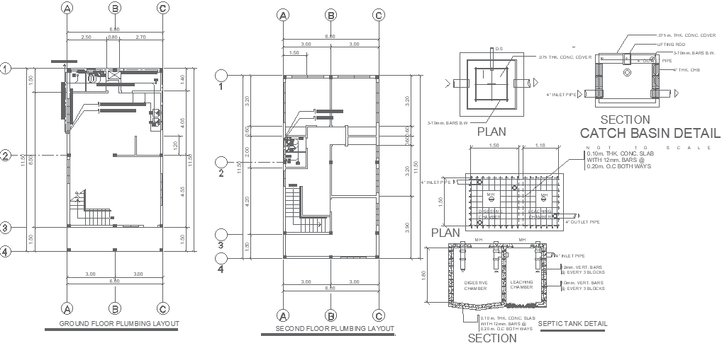
Discover a meticulously designed AutoCAD DWG drawing presenting the plumbing plan for a spacious four-bedroom house, complete with all essential details. This comprehensive drawing provides insights into the layout and installation of plumbing systems, including ground floor sewer lines, ground floor water lines, first floor sewer lines, and first floor water lines. Additionally, specific features such as septic tank details and catch basins are meticulously depicted, ensuring efficient waste disposal and water distribution throughout the house. With a detailed legend and general notes included, architects, engineers, and plumbers can easily interpret and implement the plumbing plan in the construction process. Accessible as CAD files, this drawing serves as a valuable resource for ensuring optimal functionality and longevity of the plumbing infrastructure in the four BHK house.

Uploaded by:
Liam
White

