details of column - beam intersection and holes in beam detail dwg autocad drawing .
Description
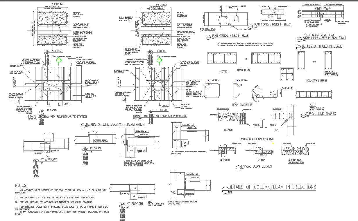
Explore a comprehensive AutoCAD DWG drawing detailing the intersection of columns and beams, along with the arrangement of holes in beams. This drawing provides insights into the intricate details of column/beam intersections, showcasing typical beam details and link shapes for structural stability. Additionally, it includes upstand and downstand beam configurations, emphasizing the importance of proper reinforcement for load-bearing elements. The drawing also features the plan and vertical holes in beams, ensuring optimal functionality and integration within the structural framework. With a focus on beam sections and elevations, this drawing serves as a valuable resource for engineers and architects involved in structural design projects. Accessible as a 2D AutoCAD drawing in DWG format, this file facilitates seamless coordination and implementation of critical design elements for sturdy and functional structures.

Uploaded by:
Liam
White

