Landscaping design for sindh forensic science laboratory with realtime highway location dwg autocad drawing .
Description
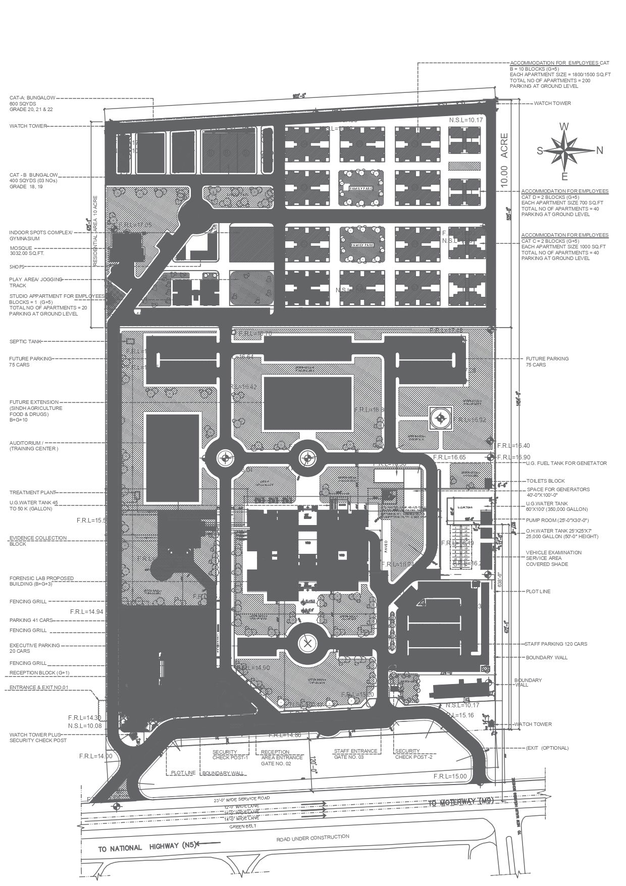
Explore the comprehensive landscaping design for the Sindh Forensic Science Laboratory, featuring Realtime highway location details in this AutoCAD DWG drawing. The design incorporates various elements including highway proximity, children's park facilities, public washrooms, and a meticulously planned layout of trees for aesthetic appeal and environmental enhancement. Key features such as security check posts, boundary walls, staff entrances, and watchtowers ensure safety and surveillance. Additionally, the design includes amenities like fencing grills, parking areas, and an auditorium for public gatherings. Architects and landscape planners can utilize this drawing to visualize and implement landscaping strategies effectively. Accessible in DWG format, this file offers valuable insights for enhancing the surroundings of the forensic laboratory while ensuring convenience and security for visitors and staff alike.

Uploaded by:
Liam
White

