Multistorey Building Design with Parking Section and all floor section DWG AutoCAD Drawing
Description
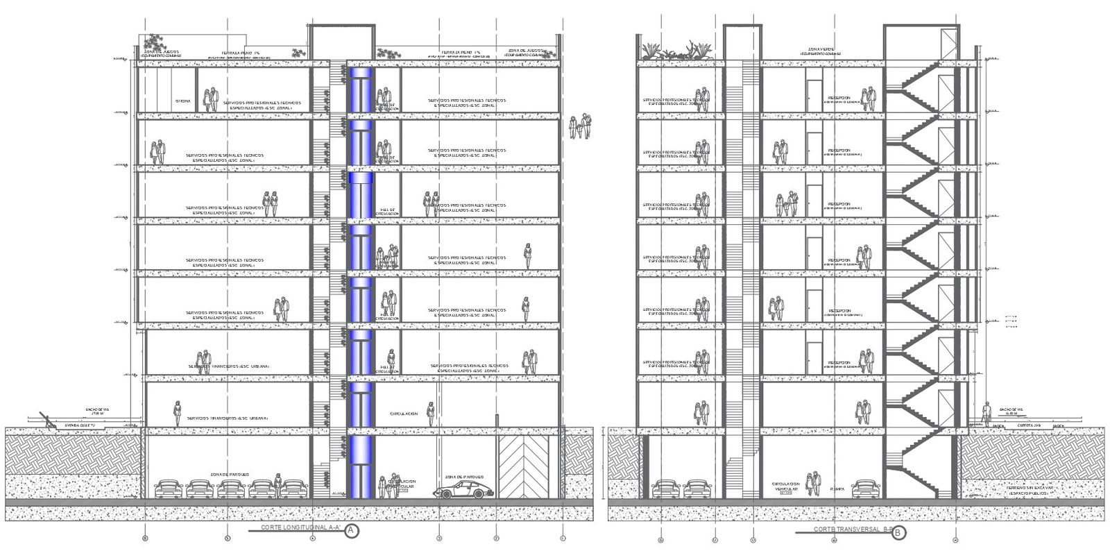
Discover a comprehensive Multistorey Building Design featuring detailed Parking Sections and all floor sections in this DWG AutoCAD Drawing. This drawing encompasses essential elements such as parking sections, stairs sections, building sections, and elevations, providing a holistic view of the architectural layout. With a focus on parking details and accessibility, including provisions for handicap parking, this drawing offers valuable insights for architects and designers. Accessible in DWG format, it serves as a versatile resource for planning and designing multistorey buildings with integrated parking facilities.

Uploaded by:
Liam
White

