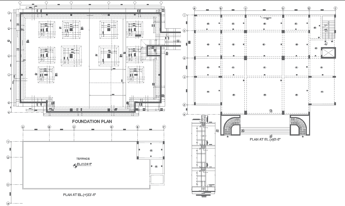
Foundation plan for Sindh forensic laboratory Karachi Pakistan detail AutoCAD dwg drawing .
Description
Explore the detailed foundation plan for the Sindh Forensic Laboratory in Karachi, Pakistan, depicted in this AutoCAD DWG drawing. Discover precise column details, dimension specifications, centerline alignments, and column-to-column layouts, ensuring accuracy and structural integrity in the construction process. This drawing serves as a valuable resource for architects, engineers, and construction professionals involved in the planning and execution of the laboratory project.

Uploaded by:
Liam
White

