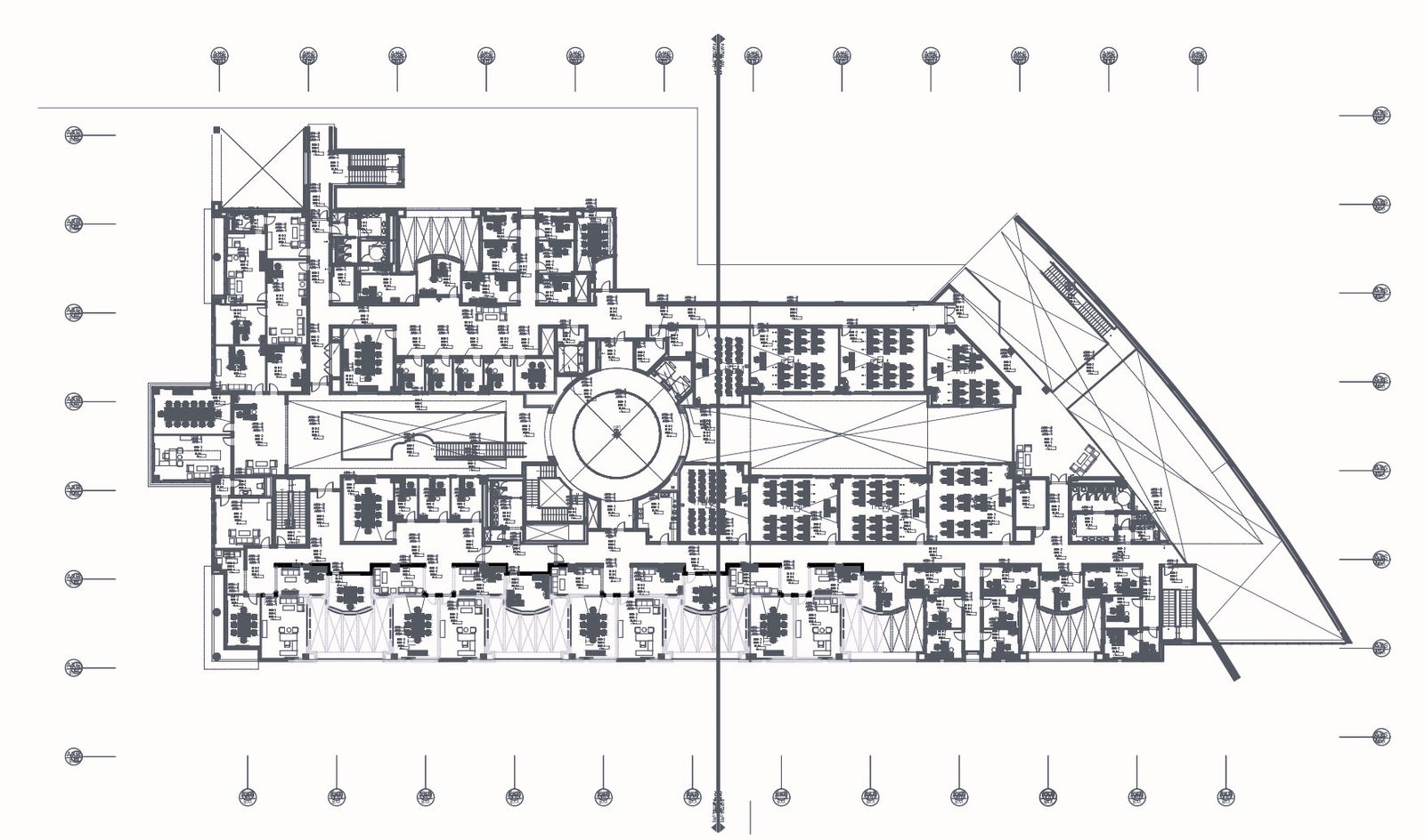
Master second floor furniture plan with key plan and site key plan dwg autocad drawing.

Master second floor furniture plan with key plan and site key plan dwg autocad drawing.
Profile

Uploaded by:

Liam

White

Description

Explore the detailed furniture arrangement on the master second floor with this AutoCAD DWG drawing, featuring key plans and site key plans for enhanced clarity and navigation. This comprehensive layout offers a clear overview of the spatial organization, including the placement of furniture items, such as tables, chairs, sofas, and more. Additionally, essential elements like elevator details and electrical closets are highlighted for easy reference. Ideal for architects, interior designers, and planners, this drawing provides valuable insights into optimizing space utilization and ensuring functional efficiency on the second floor of your project.

 

Profile

Uploaded by:

Liam

White

find Latest

Related Files

WhatsApp Chat