Garage door design with exterior and interior view dwg file
Description
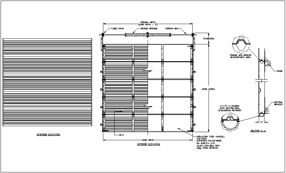
Garage door design with exterior and interior view dwg file with view of door exterior
elevation view and interior view of door with cable drum,torsion bar and torsion spring
with bottom bracket and hinge view.
File Type:
DWG
File Size:
132 KB
Category::
Dwg Cad Blocks
Sub Category::
Windows And Doors Dwg Blocks
type:
Gold

Uploaded by:
Liam
White

