First floor plan junior staff residence with furniture layout dimension and detail dwg autocad drawing .
Description
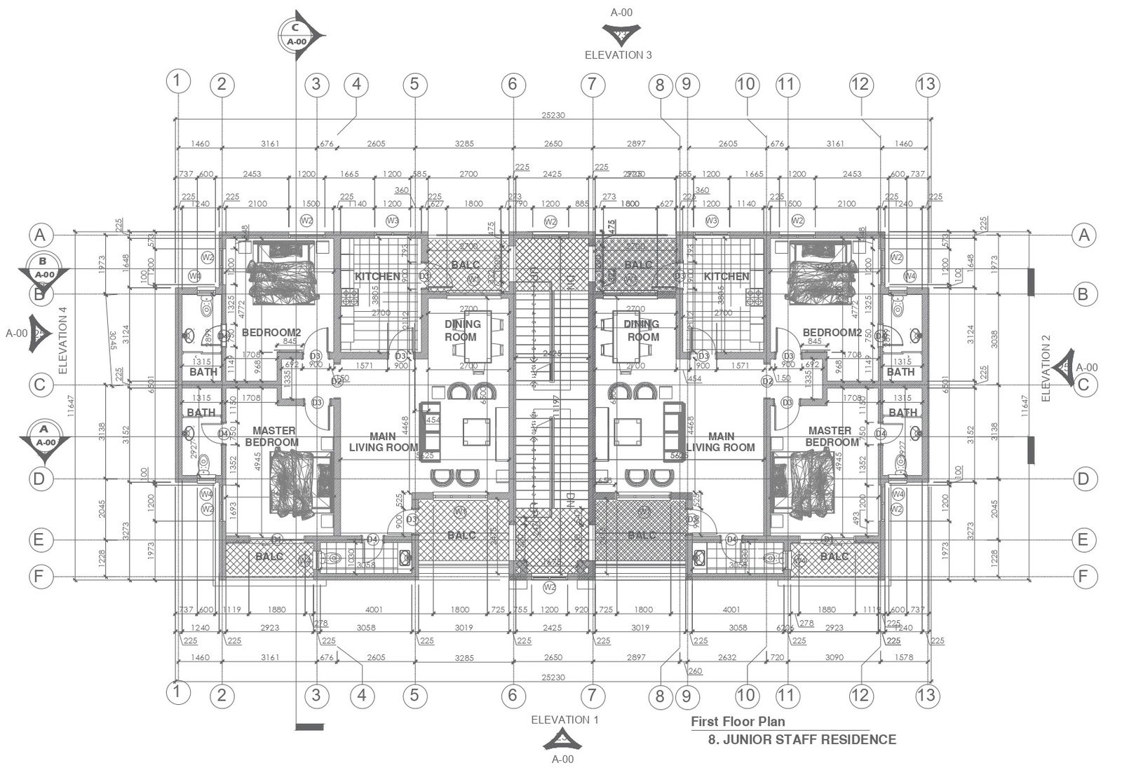
This AutoCAD drawing showcases the first-floor plan of a junior staff residence, offering a comprehensive layout of the living space. It includes detailed dimensions and furniture layout, providing valuable insights into the arrangement of furniture items within each room. Architects and designers can utilize this drawing to visualize the spatial organization and functionality of the residence effectively. Additionally, builders and contractors can refer to this drawing during construction to ensure accurate placement of furniture elements and adherence to specified dimensions. With its emphasis on clarity and precision, this first-floor plan serves as a valuable tool for all stakeholders involved in the design and construction process. Whether for planning, communication, or execution purposes, this drawing facilitates seamless coordination and enhances the overall efficiency of the project.

Uploaded by:
Liam
White

