Site plan at ratio 40 feet 0 feet with all detail dwg autocad drawing .
Description
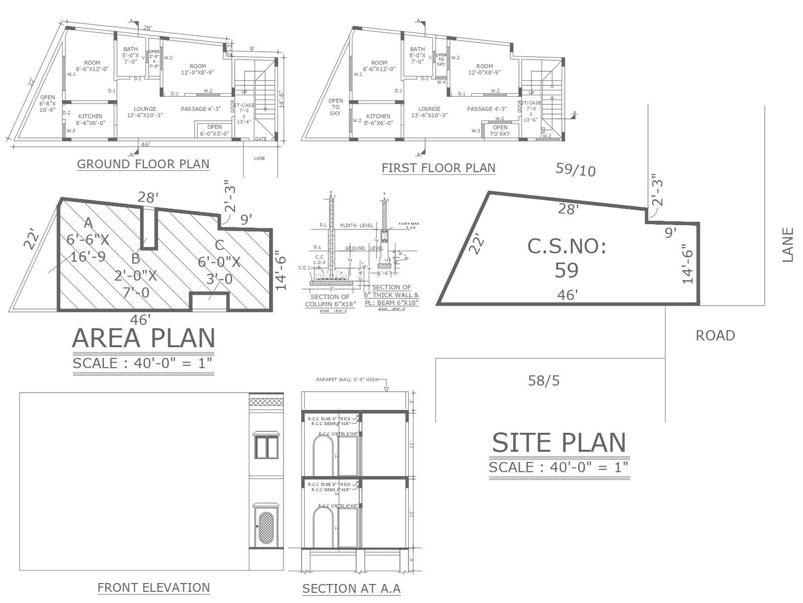
Immerse yourself in the intricacies of architectural design with this meticulously crafted site plan, presented in DWG Autocad format. Designed at a ratio of 40 feet to 0 feet, this drawing encompasses all essential details to provide a comprehensive understanding of the site layout. From plot details and site analysis to furniture arrangements and elevation, every aspect is meticulously documented. Space planning ensures optimal utilization of the available area, while floor layout and column details contribute to the overall structural integrity. Whether you're an architect seeking inspiration or a homeowner planning a new project, this drawing serves as a valuable resource. With its seamless integration into CAD software, you can easily customize and adapt the design to meet your specific requirements. Explore the world of architectural possibilities with this detailed site plan, designed to inspire and inform your next project.

Uploaded by:
Liam
White

