ninety feet by thirty feet dual plot space planning detail with elevation and furniture layout dwg autocad drawing .
Description
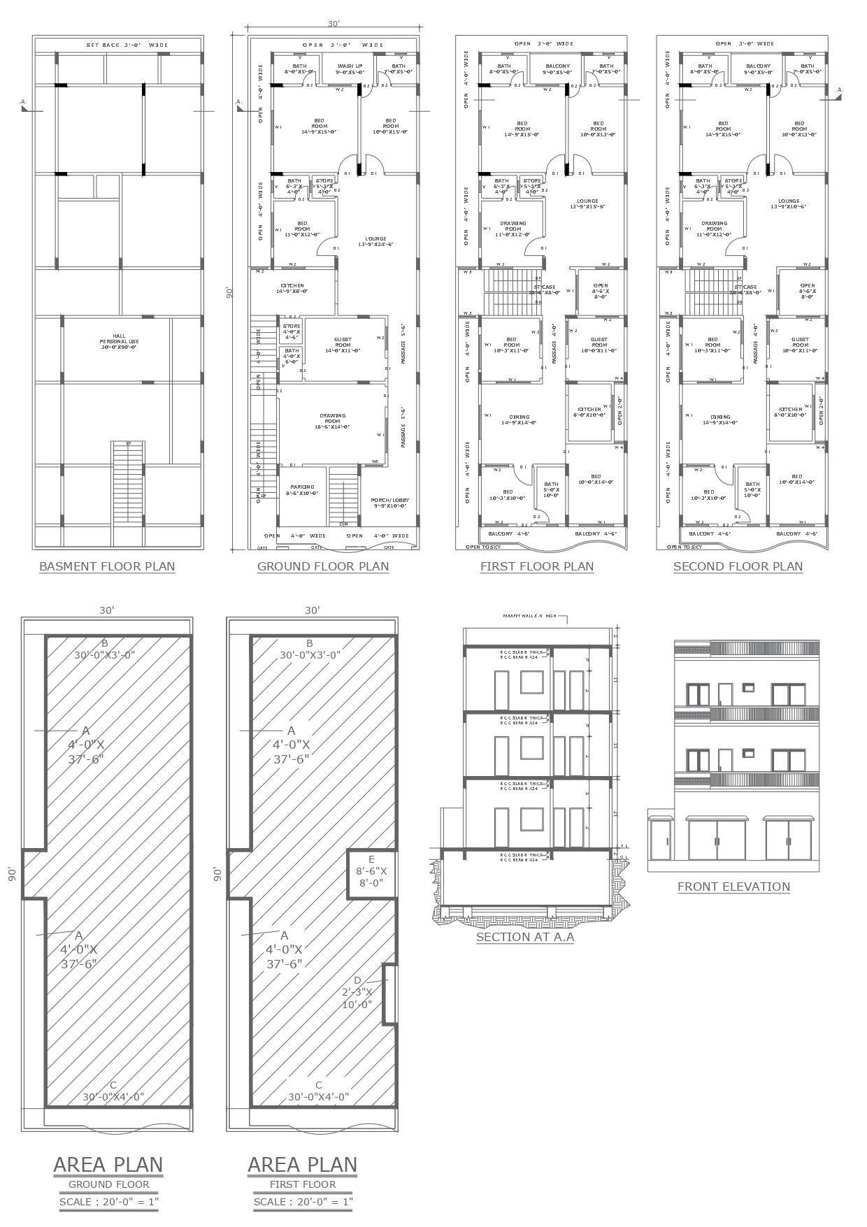
Explore our meticulously designed DWG Autocad drawing showcasing detailed space planning for a dual plot measuring ninety feet by thirty feet. This comprehensive drawing includes essential elements such as plot detail, site analysis, and furniture layout, providing a holistic view of the proposed design. With a focus on optimizing functionality and aesthetics, the drawing features elevation views that offer a clear representation of the architectural design. Additionally, the floor layout is carefully arranged to maximize space utilization and accommodate various living areas. Detailed sections and column layouts ensure structural integrity while enhancing the overall design. Whether you're an architect, designer, or homeowner, this drawing serves as a valuable resource for visualizing and implementing your construction project. With its user-friendly format and comprehensive detail, it facilitates efficient planning and execution, enabling you to bring your vision to life seamlessly.

Uploaded by:
Liam
White

