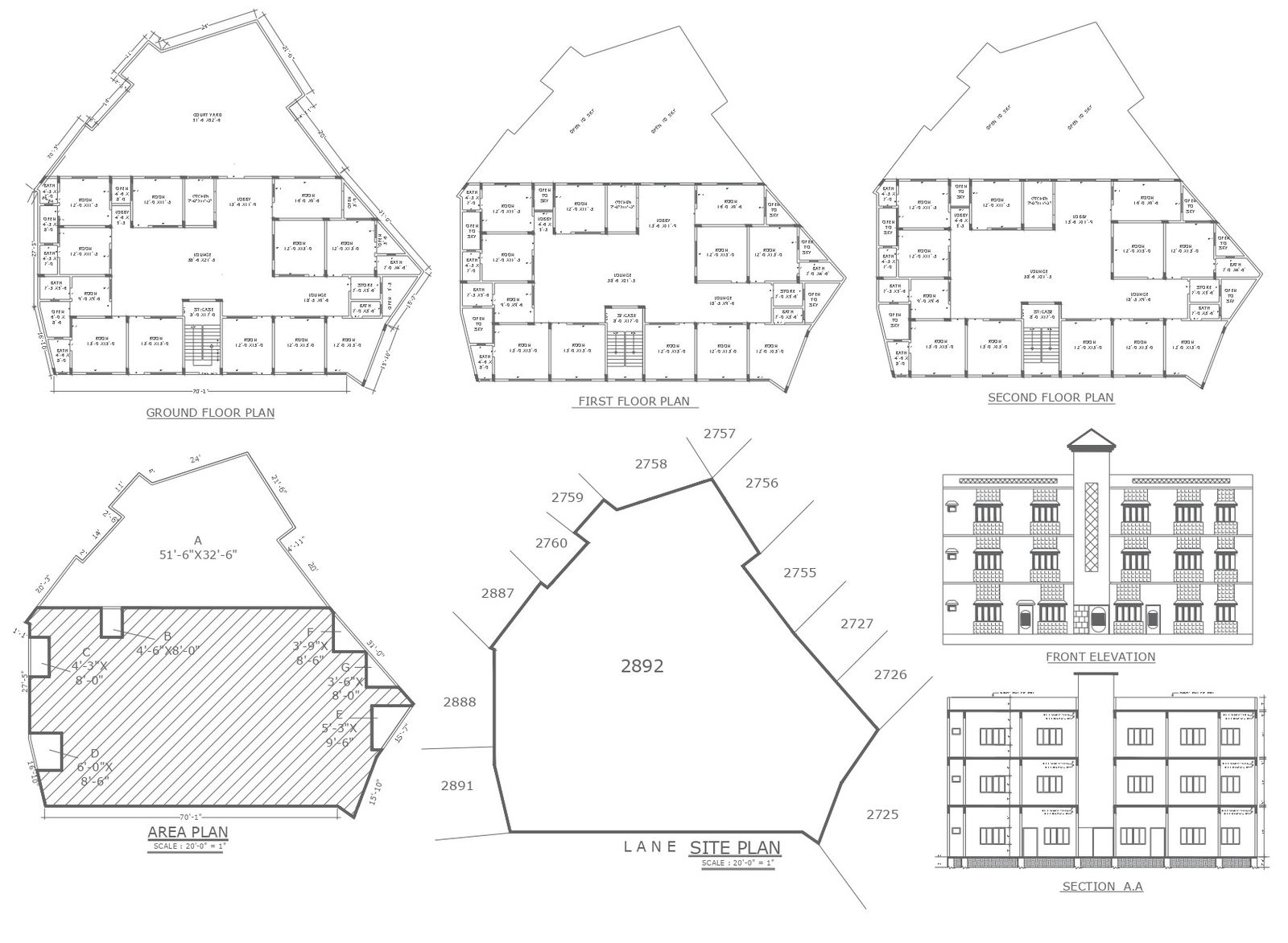
School design with elevation section and other detail dwg autocad drawing.
Description
Explore our meticulously crafted AutoCAD drawing showcasing a comprehensive school design, complete with detailed elevations, sections, and other essential details. With a focus on plot detail, site analysis, and furniture arrangement, every aspect is thoughtfully considered to optimize functionality and aesthetics in line with educational standards. Whether you're an architect, designer, or school administrator, this drawing serves as a valuable resource for planning and executing your school project with precision and clarity. Accessible in AutoCAD format, it ensures compatibility with various design software, offering flexibility and convenience in your project workflow. Dive into the world of educational architecture and design, and bring your vision for a functional and inspiring school environment to life with our comprehensive DWG drawing.

Uploaded by:
Liam
White

