School façade design with detailed dwg autocad drawing .
Description
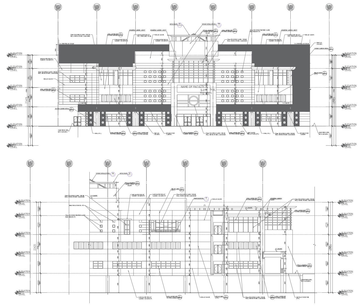
Explore the intricate details of a captivating School Facade Design with our meticulously crafted AutoCAD DWG drawing file. This drawing provides a comprehensive depiction of the facade design, complete with detailed plot information, site analysis, and furniture layout. Dive into the elevation and sectional views to gain insights into the architectural aesthetics, while the space planning and floor layout offer a glimpse into the functional aspects of the school building. Delve into the minutiae of column details and section specifications to understand the structural integrity of the facade. Whether you're an architect, student, or enthusiast, this drawing file serves as a valuable resource for architectural exploration. Download the DWG file today and embark on a journey of creativity and inspiration as you explore the intricacies of the School Facade Design.

Uploaded by:
Liam
White

