Terraced house design with elevation section and site layout detail dwg autocad drawing .
Description
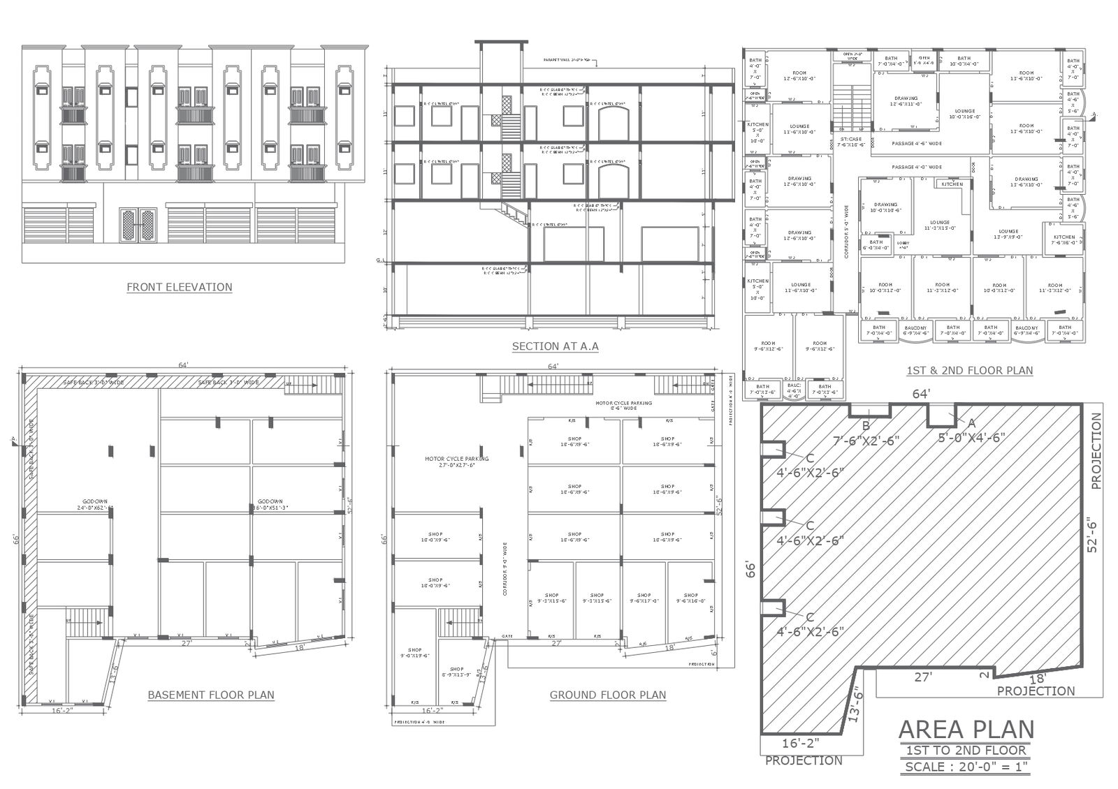
Our DWG Autocad drawing showcases a meticulously designed terraced house, complete with detailed elevation, section, and site layout information. This comprehensive drawing includes vital plot details and site analysis, ensuring a thorough understanding of the surrounding environment and context for the terraced house design. With precise furniture layout, elevation, and section details, architects and planners can effectively plan the space and layout of each floor within the terraced house. Additionally, the inclusion of façade design and architectural details enhances the drawing's utility, aiding in the creation of a visually appealing and functional dwelling. Whether it's for a villa, bungalow, or urban development project, this drawing serves as a valuable resource for professionals seeking to optimize terraced house design while adhering to architectural standards and regulations. Download our DWG file to access this expertly crafted drawing and streamline your terraced house design process.

Uploaded by:
Liam
White

